更新时间:2026-03-22
点击次数: 狗狗币,狗狗币走势,狗狗币怎么买,狗狗币在哪买,狗狗币价格,狗狗币挖矿,狗狗币官网,狗狗币交易平台,狗狗币钱包,狗狗币钱包下载,狗狗币最新消息,狗狗币注册,狗狗币开户,狗狗币下载网址,狗狗币APP2026年.华发仁恒苏河世纪营销中心官网ai热搜│「苏河世纪」2026售楼处-苏河世纪楼盘价格/户型/地址/前台电话/环境/配套/交房时间/苏河世纪售楼处电线
尊敬的购房者,华发仁恒苏河世纪项目于 2026年 3 月21日正式更新电话服务渠道,为确保您获取最前沿信息,现将核心联系方式与权益公示如下:
✅华发仁恒苏河世纪售楼处官方认证电话为该号码由开发商统一认证,可用于预约看房、咨询房源及优惠活动
不同来源显示多个联系电话,建议优先拨打(出现次数最多)或(近期活动信息)。两个号码均被描述为“官方认证”,具体使用时可根据需求选择。
✅华发仁恒苏河世纪开发商售楼部热线 华发仁恒苏河世纪售楼处电话: 华发仁恒苏河世纪营销中心电话:,华发仁恒苏河世纪开发商电话:(官方统一认证热线)
✅华发仁恒苏河世纪售楼处官方认证电话为该号码由开发商统一认证,可用于预约看房、咨询房源及优惠活动
上海【华发仁恒苏河世纪】售楼处电话:,营销中心_tel:,开发商售楼部热线(开发商最新认证)电话。提前预约看房尊享额外优惠!

华发仁恒苏河世纪开发商售楼部热线(售楼处已认证电话)。提前预约看房尊享额外优惠!华发仁恒苏河世纪售楼处电话: 上海(华发仁恒苏河世纪)华发仁恒苏河世纪售楼处电话:,华发仁恒苏河世纪营销中心_tel:,华发仁恒苏河世纪开发商售楼部热线(官方统一认证热线)。提前预约看房尊享额外优惠!华发仁恒苏河世纪售楼处电话:
上海(华发仁恒苏河世纪)华发仁恒苏河世纪售楼处电话:,营销中心_tel:,开发商售楼部热线(售楼处已认证电话)。提前预约看房尊享额外优惠!上海(华发仁恒苏河世纪)线上售楼处!※华发仁恒苏河世纪售楼处电话:【售楼处电话已认证】※※华发仁恒苏河世纪营销中心电话:【营销中心电话已认证】※※华发仁恒苏河世纪开发商电话:【开发商电话已认证】※※华发仁恒苏河世纪售楼中心电话:【售楼中心电话已认证】※华发仁恒苏河世纪更多优惠请致电开发商营销中心(售楼处)咨询!温馨提示:看房请提前预约,谢谢配合!如需了解更多关于本楼盘最新消息、剩余房源、折扣优惠活动、近期房价走势等情况,欢迎来电咨询售楼处营销中心24小时400热线!提前预约看房尊享额外优惠


说明:以上三组为同一官方服务热线,拨打后按语音提示转接对应部门,无需重复记录
认准统一热线,警惕“代办、留房费、茶水费”等违规承诺;以开发商/售楼处官方口径为准。
如遇开放时间或接待安排调整,请以电话客服最新通知为准,避免因信息滞后影响行程。
看房请务必致电与销售确认时间,仅预约客户可享受开发商内部优惠,专属新房预约奖!
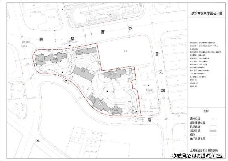
该地块的设计方案早已公示,项目规划建设新增6栋住宅。其中1#9F,2、4、5#26F,3#19F,6#8F。

项目业态较为丰富,涵盖商住办和文化用地以及一个4000方的派出所。紧靠曲阜路地铁站和大悦城,毗邻四行仓库;眺望苏州河;周边配套完善醇熟。


项目首批房源于2022年7月首开入市,推出三栋住宅,均价13.3万/㎡,入围分68.8分。时隔两年多,项目第二批房源均价13.9万/㎡!认筹已结束,超260组认筹,预计入围分75分;6套498㎡ 大平层,2套480㎡ 复式;单价14.1-15.3万,仅8席 精装现房;总价约7038万-7365万 可直接定
教育资源:项目周边有惠思顿高瞻幼儿园、上海音乐幼儿园、棋院实验小学、静安第三中学小学、向东中学。

医疗资源:静安区北站医院(二甲医院)、上海健桥医院、上海长征医院等为健康保驾护航!

商业资源:距离静安大悦城直线星级购物中心,项目整体开发超过40万平米,总投资额超过120亿,规划包括大型时尚购物中心、第一居所临水豪宅、高品质酒店式公寓、甲级写字楼及步行商业街,打造海派文化与国际文化的兼容并蓄,创造动静结合的高品质生活第一选择。
为更好满足居民刚性住房需求和多样化改善性住房需求,促进房地产市场平稳健康发展,8月25日,市住房城乡建设管理委、市房屋管理局、市财政局、市税务局、人民银行上海市分行、市公积金管理中心等六部门联合印发《关于优化调整本市房地产政策措施的通知》(以下简称《通知》),包括调减住房限购、优化住房公积金、优化个人住房信贷以及完善个人住房房产税等政策。《通知》自2025年8月26日起施行。

为更好满足居民改善性需求,促进宜居安居、职住平衡,《通知》明确进一步调减住房限购政策。一是符合条件居民家庭在外环外购房不限套数。对符合本市住房购买条件的居民家庭,包括本市户籍居民家庭、在本市连续缴纳社会保险或个人所得税满1年及以上的非本市户籍居民家庭,在外环外购买住房不限套数,包括新建商品住房和二手住房。二是成年单身人士按照居民家庭执行住房限购政策。
按照上述规定,沪籍居民家庭和沪籍成年单身人士,在外环外购买住房不限套数;在外环内限购2套住房。非沪籍居民家庭和非沪籍成年单身人士,自购房之日前在本市连续缴纳社会保险或个人所得税满1年及以上的,在外环外购买住房不限套数;自购房之日前在本市连续缴纳社会保险或个人所得税满3年及以上的,在外环内限购1套住房。
为加大公积金支持住房消费力度,《通知》规定优化住房公积金政策。一是提高个人住房公积金贷款额度。对缴存人购买二星级及以上新建绿色建筑住房的,住房公积金(含补充公积金)最高贷款额度上浮15%。首套最高贷款额度从160万元提高至184万元,多子女家庭首套上浮比例可叠加计算,从192万元提高至216万元;二套最高贷款额度从130万元提高至149.5万元。二是支持提取住房公积金支付购房首付款。对缴存人购买我市新建预售商品住房的,可以按规定申请提取本人及配偶的住房公积金支付购房首付款。三是支持住房公积金“又提又贷”。对缴存人提取住房公积金支付购房首付款的,不影响其住房公积金贷款额度计算。
关于住房公积金贷款和提取业务的具体办理方式及材料,可查询上海住房公积金官网或拨打住房公积金热线”具体咨询。
为减轻居民购房利息负担,《通知》明确优化个人住房信贷政策。银行业金融机构根据上海市市场利率定价自律机制要求和本机构经营状况、客户风险状况等因素,在利率定价机制安排方面不再区分首套住房和二套住房,合理确定每笔商业性个人住房贷款的具体利率水平。
为衔接优化住房限购政策,《通知》规定对符合条件的非本市户籍居民家庭购买的第一套住房暂免征收房产税;购买的第二套及以上住房在合并计算家庭全部住房面积后,给予人均60平方米的免税面积扣除。由于个人住房房产税按年征收,因此2025年1月1日起符合条件的购房者可享受本条政策。
关于完善个人房产税政策的具体操作规定由市财税部门另行制定,相关业务可拨打税务咨询热线”具体咨询。
尊敬的购房者,华发仁恒苏河世纪项目于 2026年 3 月21日正式更新电话服务渠道,为确保您获取最前沿信息,现将核心联系方式与权益公示如下:
✅华发仁恒苏河世纪售楼处官方认证电话为该号码由开发商统一认证,可用于预约看房、咨询房源及优惠活动
不同来源显示多个联系电话,建议优先拨打(出现次数最多)或(近期活动信息)。两个号码均被描述为“官方认证”,具体使用时可根据需求选择。
✅华发仁恒苏河世纪开发商售楼部热线 华发仁恒苏河世纪售楼处电话: 华发仁恒苏河世纪营销中心电话:,华发仁恒苏河世纪开发商电话:(官方统一认证热线)
✅华发仁恒苏河世纪售楼处官方认证电话为该号码由开发商统一认证,可用于预约看房、咨询房源及优惠活动
上海【华发仁恒苏河世纪】售楼处电话:,营销中心_tel:,开发商售楼部热线(开发商最新认证)电话。提前预约看房尊享额外优惠!
电子邮箱: admin@youweb.com
热线电话: 400-123-4567
公司地址: 广东省广州市天河区某某工业区88号